HR EN
3. Dubrovnik-Neretva County

Population: 115.564
GDP per capita: 19.900,00 EUR
Unemployment rate: 9,40%
Average Gross Salary: 1.663,00 EUR
Average Net Salary: 1.229,00 EUR

Distances from traffic infrastructure

Road: 0,1 km
Highway: A1, 127 km
Railway siding: 113 km
Sea port: Vela Luka , 7 km
Airport: Split, 118 km

Companies in the zone

"BRAVARSKO LIMARSKI OBRT SAJETA, DAMIR SARDELIĆ"
Activity: Locksmithing and sheet metal work
Country of origin: Republic of Croatia
Company website:

ŽANETIĆ Ltd.
Activity: Agriculture, production, trade and services
Country of origin: Republic of Croatia
Company website:

"PINBOR" Trade
Activity: Production of furniture
Country of origin: Republic of Croatia
Company website:

"ŽIVO" Trade
Activity: Trade, repair of agricultural and forestry machinery
Country of origin: Republic of Croatia
Company website:

GLOBO Ltd.
Activity: Production, trade and services
Country of origin: Republic of Croatia
Company website:

AUTOTRANS Ltd.
Activity: Traffic
Country of origin: Republic of Croatia
Company website:

ADRIA DIRECT Ltd.
Activity: Gas distribution and supply, travel agency
Country of origin: Republic of Croatia
Company website:

Business Zone Krtinja (Blato) Download as PDF

General information

Location (city/municipality) Blato Municipality
Zone type Business zone
Area of the zone (m²) 52.235
Available land (m²) 26.376
Land use Manufacturing and services
Building coverage ratio 0,5
Floor area ratio 1,2
Allowed construction height (m) 12
Allowed noise level (at the border of the site, dB) 55
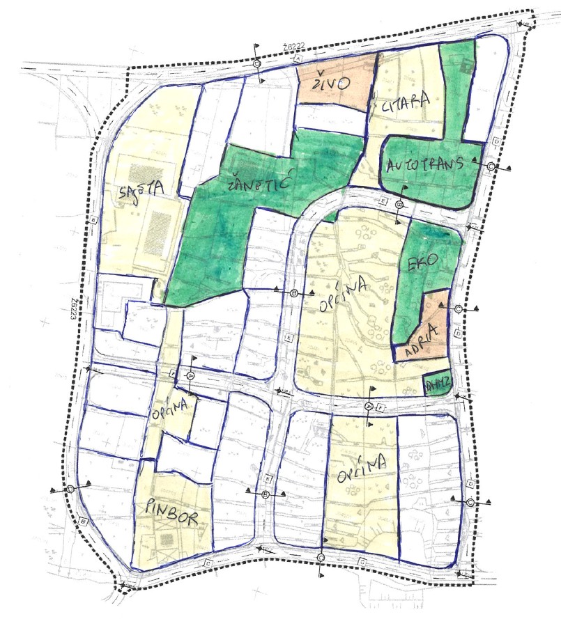
Diagram of the zone
Scanned copy of cadastral plan extract with highlighted available lots

Utility infrastructure

Gas
Availability No
Electricity
Availability Yes
Water
Availability Yes
Sewage
Availability No
Water purifier No

Communal information

Communal contribution fee
Communal contribution for manufacturing (EUR/m³) up to 200 m2 = 5.31; over 200 m2 = 4.65
Communal contribution for office spaces (EUR/m³) up to 200 m2 = 5.31; over 200 m2 = 4.65
Communal contribution for services (EUR/m³) up to 200 m2 = 5.31; over 200 m2 = 4.65
Redemption from paying communal contribution fee Yes, possibly partially up to 30%
Communal contribution tax
Amount of communal contribution tax (EUR/m²) 0.52 - 1.11 depending on the activity
Redemption from paying communal contribution tax No
Water fee
Water regulation fee (EUR/m²) 0.47 – 1.67 depending on the activity

Physical plans

County urban plan Yes
Municipal/City urban plan Yes
Master urban plan Yes
Urban development plan Created
Detailed urban plan Created

Ministry of Economy assumes no legal responsibility for the accuracy or comprehensiveness of the data supplied in this database. Ministry of Economy accepts no liability for any direct, indirect, consequential or incidental damages or losses arising from use of the data collection.